写真をクリックすると拡大します
内壁や床のつぎめにカビがはえやすく、毎日の掃除が負担になっていた奥様。白っぽい壁がまぶしく、入浴時に目が疲れると感じていた旦那様。ご夫婦ともにお風呂に不満がありました。給湯器の修理をきっかけに「この機会にお風呂をリフォームしたい!」とご相談いただきました。掃除がしやすく、明るさは保ちながら落ち着いた空間に変わりました。
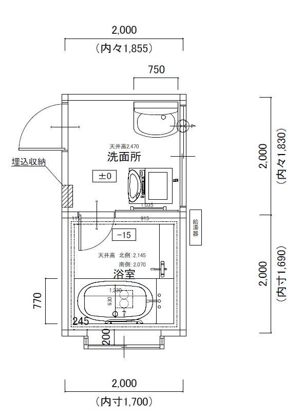
最新のシステムバスは壁・床・ドアまわり等凹凸が少なく、お手入れしやすい構造になっています。さらに、親水性の特殊な効果で乾きやすく・皮脂汚れが付着しにくいTOTO「お掃除ラクラクほっカラリ床」など、簡単なお手入れでキレイが保てる設備を採用しています。
また、お母様が来られた際に入浴しやすいよう手すりを追加し、浴槽はふちが握りやすいタイプを選びました。ヒートショックの予防にもつながるガス温水式浴室暖房乾燥機を設置し、冬場も安心して入浴できます。 浴室全体の印象を決める壁の色は、ショールームで実物を見ながらご家族で選んでいただきました。
【お施主様の声】
壁や床のつぎめがなくなり、毎日の掃除が楽になりました!クッション性のある床が暖かくて気持ちいいです。見た目もキレイになり、リラックスして入浴できます。
補助金の対象期間にリフォームを行うことができて、ラッキーでした。申請などは全て土佐ガスさんにお任せで、面倒な手間なくお得にリフォームできました。
洗面台の大きさは同じですが、収納量は大幅にアップしています!ミラーの後ろに収納があり、細々とした小物が隠れるので、見た目もスッキリです。天井・壁のクロスと床のクッションフロアも新しく貼り替えました。
※月~金の夜間(17:30~翌9:00)および、土日・祝日・年末年始・ゴールデンウィークはガイダンスが流れますので、案内に従ってお進みください。
お客様総合窓口
TEL 088-800-1212
佐川営業所
TEL 0889-22-0315
幡多支店
TEL 0880-35-4372
土佐清水営業所
TEL 0880-82-4010
中村営業所
TEL 0880-35-4372
宿毛営業所
TEL 0880-65-8136
窪川ガス
TEL 0880-22-2886
お客様総合窓口
TEL 088-800-1212
月~金曜日 / 9:00~17:30(祝日・年末年始除く)
※月~金の夜間(17:30~翌9:00)および、土日・祝日・年末年始・ゴールデンウィークはガイダンスが流れますので、案内に従ってお進みください。
佐川営業所
TEL 0889-22-0315
月~金曜日 / 9:00~17:30(祝日・年末年始・ゴールデンウィーク除く)
幡多支店
TEL 0880-35-4372
月~金曜日 / 9:00~17:30(祝日・年末年始・ゴールデンウィーク除く)
土佐清水営業所
TEL 0880-82-4010
月~金曜日 / 9:00~17:30(祝日・年末年始・ゴールデンウィーク除く)
中村営業所
TEL 0880-35-4372
月~金曜日 / 9:00~17:30(祝日・年末年始・ゴールデンウィーク除く)
宿毛営業所
TEL 0880-65-8136
月~金曜日 / 9:00~17:30(祝日・年末年始・ゴールデンウィーク除く)
窪川ガス
TEL 0880-22-2886
月~金曜日 / 9:00~17:30(祝日・年末年始・ゴールデンウィーク除く)




今お使いの畳を床暖専用の畳に入れ替える工法です。
施工時間の目安6畳の場合 1日~
①施工前のお部屋です。
②今の畳を剥ぎ、断熱材を仕込みます。
③温水マットを敷設します。
④床暖房用の畳を敷設し完成です。元々の床と高さに変更はありません。





今の床材を撤去して、張り替える工法です。
施工時間の目安10畳の場合 3日~
①施工前のお部屋です。
②床材を撤去し、既存の床と高さが揃うよう根太を調整します。
③根太の間に断熱材を仕込み、コンパネを敷設します。
④温水マットを敷設、ベニヤ板で隙間の段差を揃えます。
⑤フローリングを敷設し完成です。元々の床と高さに変更はありません。




今のフローリングの上に床暖房用の床材を貼る工法です。
施工時間の目安10畳の場合 2日~
①今のフローリングにビスを打ちます。
②温水マットを敷設、ベニヤ板で隙間の段差を揃えます。
③フローリングを敷設し完成です。
④施工した床は元々の床より高くなります。施工した部屋と廊下との間にできた段差にスロープを付け、なだらかにします。
株式会社窪川ガス
TEL 0880-22-2886
月~金曜日 / 9:00~17:30(祝日・年末年始・ゴールデンウィーク除く)
土佐清水営業所
TEL 0880-82-4010
月~金曜日 / 9:00~17:30(祝日・年末年始・ゴールデンウィーク除く)
中村営業所
TEL 0880-35-4372
月~金曜日 / 9:00~17:30(祝日・年末年始・ゴールデンウィーク除く)
宿毛営業所
TEL 0880-65-8136
月~金曜日 / 9:00~17:30(祝日・年末年始・ゴールデンウィーク除く)
お客様総合窓口
TEL 088-800-1212
月~金曜日 / 9:00~17:30(祝日・年末年始除く)
※月~金の夜間(17:30~翌9:00)および、土日・祝日・年末年始・ゴールデンウィークはガイダンスが流れますので、案内に従ってお進みください。
佐川営業所
TEL 0889-22-0315
月~金曜日 / 9:00~17:30(祝日・年末年始・ゴールデンウィーク除く)
幡多支店
TEL 0880-35-4372
月~金曜日 / 9:00~17:30(祝日・年末年始・ゴールデンウィーク除く)
弊社では、お客さまとのお取引等に伴いお客様の個人情報をいただいております。
この文書は、個人情報保護法の規定に従い、お取引等に伴い弊社が入手するお客様の個人情報の利用目的、取り扱い等についてご説明するものです。
弊社が保有する個人情報
弊社は、下記のお客様の個人情報を保有しています。
1. 弊社とのお取引等に伴い入手したお客様の個人情報(お名前、住所、電話番号等)
2. お取引内容の履行に伴い発生するお客様番号、購入履歴、サービス提供情報等
3. 弊社が実施する展示会等により入手したお客様の個人情報
(お名前、性別、住所、生年月日、電話番号、メールアドレス等、アンケート用紙や申込書に記された個人情報)
個人情報の利用目的
弊社が保有するお客様の個人情報は、下記の目的で利用いたします。
1. お客様とのお取引内容の履行、契約管理やアフターサービスの実施のため。
2. 弊社の他の商品・サービスの紹介ならびにお客様にとって有用と思われる弊社グループ各社の商品・サービス等を紹介するためのダイレクトメールの発送等各種ご案内のため。
ご提供いただいた個人情報は、これらの目的以外には一切利用いたしません。
個人情報の保護・管理
弊社では、「個人情報保護方針」「情報管理基本規程」を定めるとともに、個人情報保護法をはじめ、個人情報保護に関係する日本の法令その他の規範を遵守してまいります。また、従業員各自の教育、啓発に努め、個人情報保護意識の高揚を図ります。
お客様の個人情報の管理にあたっては、個人情報管理責任者のもと、個人情報を取り扱う部門ごとに責任者を置き、適切な管理を行うとともに、外部への流出の防止のために最大限の注意を払っています。また、外部からの不正アクセス、または紛失、破壊、改ざんなどの危険に対しては、適切かつ合理的なレベルの安全対策を実施しています。
加えて弊社では、個人情報保護に関する上記体制を継続的に見直し、その改善に努めます。
個人情報の外部委託
よりよいサービスをご提供するために、個人情報の取り扱いを外部に委託することがあります。委託先は個人情報を適切に取り扱っていると認められる委託先を選定し、委託先においても、個人情報の適切な管理、秘密保持、再提供の禁止等を実施させています。
個人情報の共同利用について
弊社が保有するお客様の個人情報は、下記のとおり、弊社グループ企業間で共同利用をいたします。
1. 共同利用する個人データ項目 お名前、性別、住所、生年月日、電話番号、メールアドレス、お客様番号、お取引内容、お取引の履歴、アンケートの内容
2. 共同利用者 弊社グループ各社 ・株式会社エスシー ・株式会社アツミ電子計算センター ・アツミ空調株式会社 ・土佐ガス西部販売株式会社 ・株式会社窪川ガス ・有限会社アツミ物流
3. 共同利用の目的 弊社が保有するお客様の個人情報は、下記の目的で共同利用いたします。 (1)お客様との契約の履行、契約の管理、契約後の管理やアフターサービスの実施のための事業を、上記共同利用者と共同して実施するため。 (2)お客様にとって有用と思われる共同利用者の商品・サービス等を紹介するためのダイレクトメールの発送等各種ご案内。なお、このための利用は、お客様からの申し出により情報の配信を停止致します。 ご提供いただいた個人情報は、これらの目的以外には一切利用いたしません。
4. 個人情報の管理について責任を有する者 土佐ガス株式会社
個人情報の第三者への提供について
弊社が保有するお客様の個人情報を、お客様の同意なしに第三者に開示・提供することはありません。ただし、以下の場合は、お客様の同意なく個人情報を開示・提供することがあります。
1. 法令に基づく場合
2. 人の生命、身体又は財産の保護のために必要がある場合であって、お客様の同意を得ることが困難であるとき。
3. 公衆衛生の向上又は児童の健全な育成の推進のために特に必要がある場合であって、お客様の同意を得ることが困難であるとき。
4. 国の機関若しくは地方公共団体又はその委託を受け法令の定める事務を遂行することに対して協力する必要がある場合であって、お客様の同意を得ることにより当該事務の遂行に支障を及ぼすおそれがあるとき。
個人情報の開示について
お客様は弊社に対して、いつでも弊社が有しているお客様の個人情報をお客様に開示するよう求めることができます。お客様から自らに関する個人情報の開示を求められた場合は、遅滞なくこれに応じます。下記、お問合せ窓口までご連絡ください。
個人情報の訂正または削除
弊社に提供した個人情報に誤りがある場合は、お客様は弊社に対して当該個人情報の訂正または削除を要求することができます。お客様から自らに関する個人情報の訂正、削除のお申し出があったときは、遅滞なくその調査を行い、訂正、削除の必要とする事由がある場合は、遅滞なく、訂正、削除を行います。下記、お問合せ窓口までご連絡ください。
お問合せ窓口
〒781-8543 高知県高知市葛島2-3-75
TEL:088-882-3165 FAX:088-884-9270
土佐ガス株式会社 情報取扱委員会