施工事例

床暖房×内窓で冬でもあたたかいリビングに

写真をクリックすると拡大します

床暖房×内窓で冬でもあたたかいリビングに

H様邸 南国市

建物の種類戸建て(木造)
リフォーム部分キッチン
ダイニング
リビング
施工日数40日
リフォーム費用540万円

ひとりぼっちのキッチン卒業

「キッチンと和室をひと続きのLDKにしたい」、「憧れの対面キッチンにしたい」という、奥様のご要望に合わせてプランを考えました。

また「全体的に部屋が寒い」というお悩みを解消するため、全面に床暖房を敷設。更に暖房効果を上げるため、リビングの掃出し窓とキッチンの出窓に内窓を設置しました。


施工事例アイコン

LDK

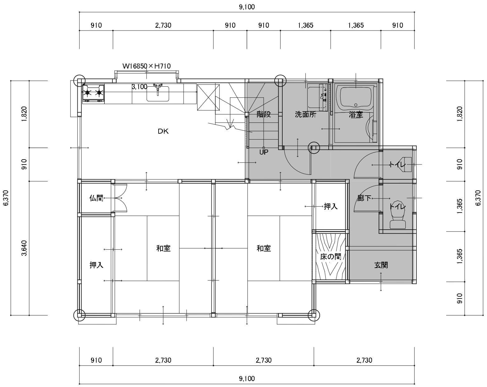
7.5畳の台所と、6畳の和室が2部屋、合計3部屋あり、最初は台所のテーブルで食事をしていました。ですが、台所が寒いのと、テレビを置いていなかったため、和室の座卓で食事をするようになりました。

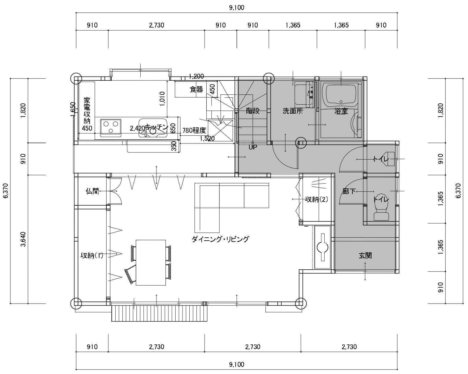
台所は炊事するだけの空間になっていたので、全部屋を有効活用できるよう、一部屋のLDKにリフォーム。耐震面を補強しながら、開口をできるだけ広くとるようにしたことで、「部屋が明るくなった」とお喜びいただきました。

床の色について、ダイニングリビング「孟宗竹」という和風な色を選び、キッチンは「シカモア」という明るい色を選びました。
「ダイニングは落ち着ける空間になり、キッチンは明るくなってとても気に入っています」と奥様。「見本帳を参考に、クロスも思いきって変わった雰囲気に挑戦しましたが、こちらもかなり気に入っています。また、テレビ台の背面をエコカラットにしたのも、アクセントになり良かったです。」

Before
After

施工事例アイコン

キッチン

ホーローのセット型キッチンをきれいに使われていましたが、収納が少なく、出窓の前まで物を置いていました。 そこでI型キッチンとコーナーユニットを対面式に設置するプランを、周辺キャビネットとあわせて提案しました。 キッチンの背面側、出窓の下のスペースを、出窓と同じ奥行き分、外へ出し、収納にしました。

「対面式キッチンになったことで、リビングの家族の様子が感じられるようになり、一人で炊事をしている孤独感がなくなりました!」と、奥様もお喜びです。

また対面キッチンの前方は人の行き来が多く、邪魔にならないよう、カウンターを上げ下げできるようにしました。

Before
After

床暖房×内窓

冬場、全体的に部屋が寒いことが悩みでしたが、床暖房だけで十分暖かく、他の暖房器具は要らなくなりました。

床暖房と一緒に内窓をつけましたが、一番寒かった北面のキッチンは全く寒さが気にならなくなり、特に効果を感じます。

さらに内窓で結露がなくなっただけではなく、空港が近いため気になっていた飛行機の音も全く気にならなくなり、良いこと尽くめです。

After

関連記事

お問合せ

お客様総合窓口

TEL 088-800-1212

月~金曜 / 9:00~17:30
(祝日・年末年始・ゴールデンウィークを除く)

各種お問合せ窓口