施工事例

解放感たっぷりおしゃれなアイランドキッチン

解放感たっぷりおしゃれなアイランドキッチン

リフォーム面積 34.25㎡(約10.36 坪)
建物の種類 戸建て
リフォーム部分 キッチン
リビング
床暖房
金額 約300万円(税別)
※別途追加工事有り
施工期間 15日
使用製品 システムキッチン TOTO ザ・クラッソ 間口2,573mm
周辺キャビネット TOTO ザ・クラッソ 間口1,350mm
キッチンパネル アイカ工業 セラール
建具 Panasonic ベリティス 上吊り引戸
床材 朝日ウッドテック ライブナチュラル
床暖房 ノーリツ
使用製品
システムキッチン:
TOTO ザ・クラッソ 間口2,573mm
周辺キャビネット:
TOTO ザ・クラッソ 間口1,350mm
キッチンパネル:
アイカ工業 セラール
建具:
Panasonic ベリティス 上吊り引戸
床材:
朝日ウッドテック ライブナチュラル
床暖房:ノーリツ

画像をクリックすると拡大されます。

リフォームのポイント

後から増やした収納がちぐはぐで気に入っていないなど、長年使っている中でキッチンの不満が募っていた奥様。スッキリ収納できるよう、「物を減らしてリフォームする!」と決意。
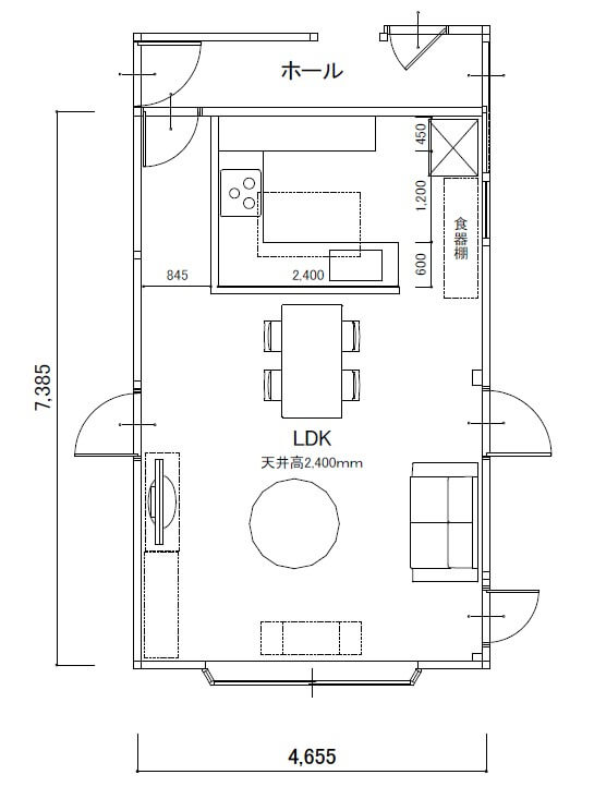
キッチンがコの字の壁に囲まれていましたが、ロボット掃除機が使えるよう、アイランドキッチンとリビングをワンフロアにリフォームしました。ガスコンロ横は汚れが飛び散るため壁を設置し、裏面を鍵などの小物を置けるニッチ収納に。
また1階の店舗に設置した床暖房を2階のご自宅にも設置したい!と、あわせて工事を行いました。

お客様の声

キッチン上部にある天窓から光が入り、明るく気持ちの良い空間になりました。床前面にガス温水式床暖房を設置したので、寒い冬でも足元からぽかぽか暖かくなり、とても快適に過ごせています。

リフォーム内容

・図面

Before

After

After

・キッチン

Before

After

After

・壁紙

Before

After

After

関連記事

お問合せ

お客様総合窓口

TEL 088-800-1212

月~金曜 / 9:00~17:30
(祝日・年末年始・ゴールデンウィークを除く)

各種お問合せ窓口